Skip to content
The Adair
The Adair

all about this floorplan

The Adair

Where Space Meets Style! The Adair isn’t just a home; it’s a game-changer.

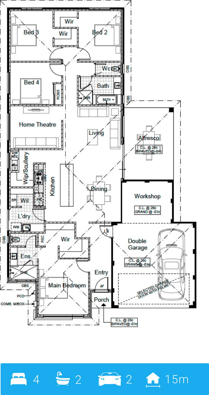
Need a spot for your DIY projects or just extra storage for all your gear? The spacious workshop in the garage has you covered. Inside, the bedrooms are anything but basic-most come with walk-in robes, and the Main Bedroom? It’s got a wardrobe so roomy you will never run out of space.

Movie nights hit different in your private Theatre, and the Kitchen? Equipped with a Scullery that’s ready for anything from gourmet creations to midnight snack attacks. The Adair is all about space, style, and living large!

Let’s chat

Want to know more about our services or our floor plan pricing?
Schedule a free 10-minute call with us using the button below or fill out a form. We’re here to answer any questions you have!

0
View