Skip to content
The Alpine
The Alpine

all about this floorplan

The Alpine

First Home? More Like Dream Home! Who says your first home can’t feel like a luxury retreat? The Alpine proves that style and comfort go hand in hand.

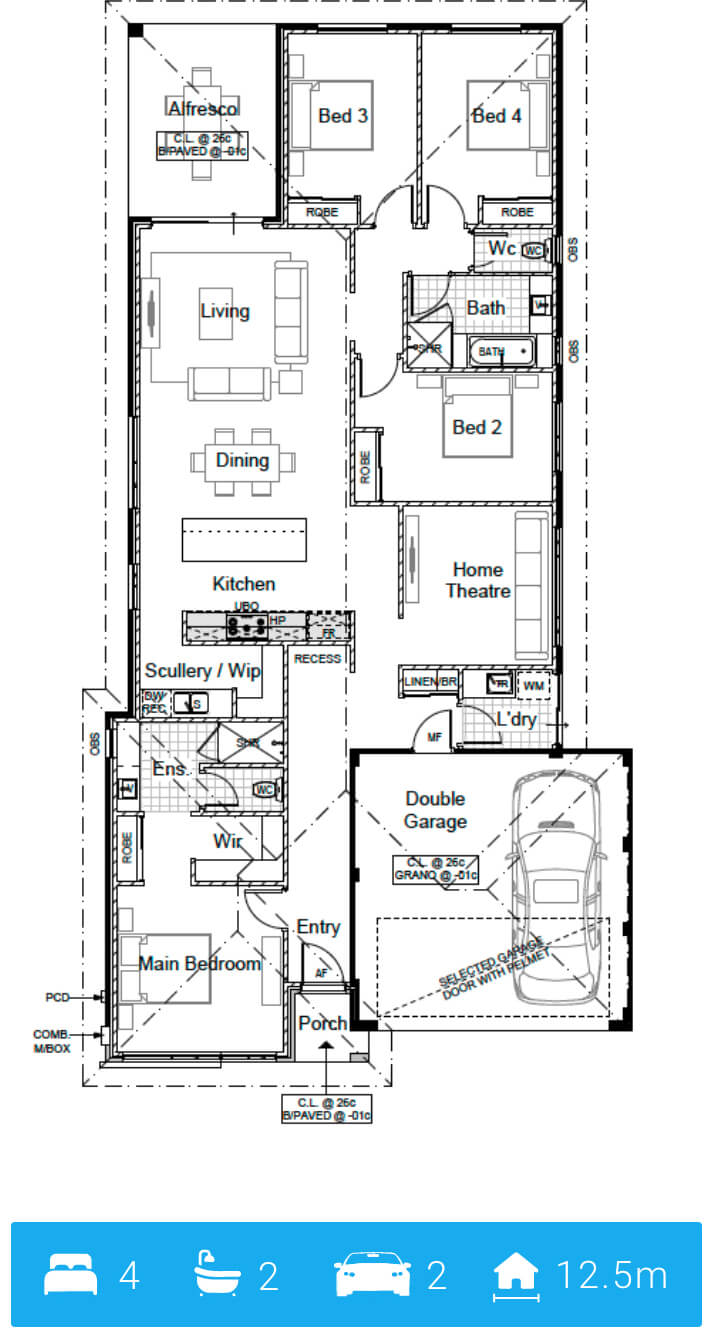
With 4 bedrooms, 2 bathrooms, and a 12.5m frontage, this beauty is packed with high-end features. Movie buff? You’ve got a private Theatre. Prefer to kick back in the open-plan living space? That’s covered too.

And when it’s time to unwind, the extra-long ensuite shower in the Main Bedroom is basically a personal day spa. The Kitchen is a chef’s dream, featuring a Scullery and walk-in pantry—because extra space is always a win. The Alpine isn’t just a house; it’s the home upgrade you deserve!

Let’s chat

Want to know more about our services or our floor plan pricing?
Schedule a free 10-minute call with us using the button below. We’re here to answer any questions you have!

0
View