Skip to content
The Basswood
The Basswood

all about this floorplan

The Basswood

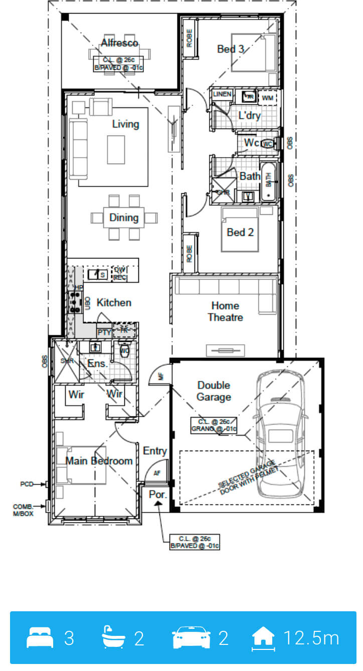
A Home That Gets You! Every family member gets their own slice of happiness in The Basswood.

Love movie nights? The home theatre is perfectly placed near the kitchen—because let’s be real, no movie is complete without snacks! Storage? We’ve got that covered, with built-in robes in every bedroom to keep the clutter at bay.

And for the ultimate relaxation, the Main Bedroom features a double-sized shower—because why settle for anything less? With a 12.5m frontage, 3 bedrooms, and 2 bathrooms, this home blends comfort, convenience, and just the right amount of luxury.

Let’s chat

Want to know more about our services or our floor plan pricing?
Schedule a free 10-minute call with us using the button below or fill out a form. We’re here to answer any questions you have!

0
View