Skip to content
The Chateaux
The Chateaux

all about this floorplan

The Chateaux

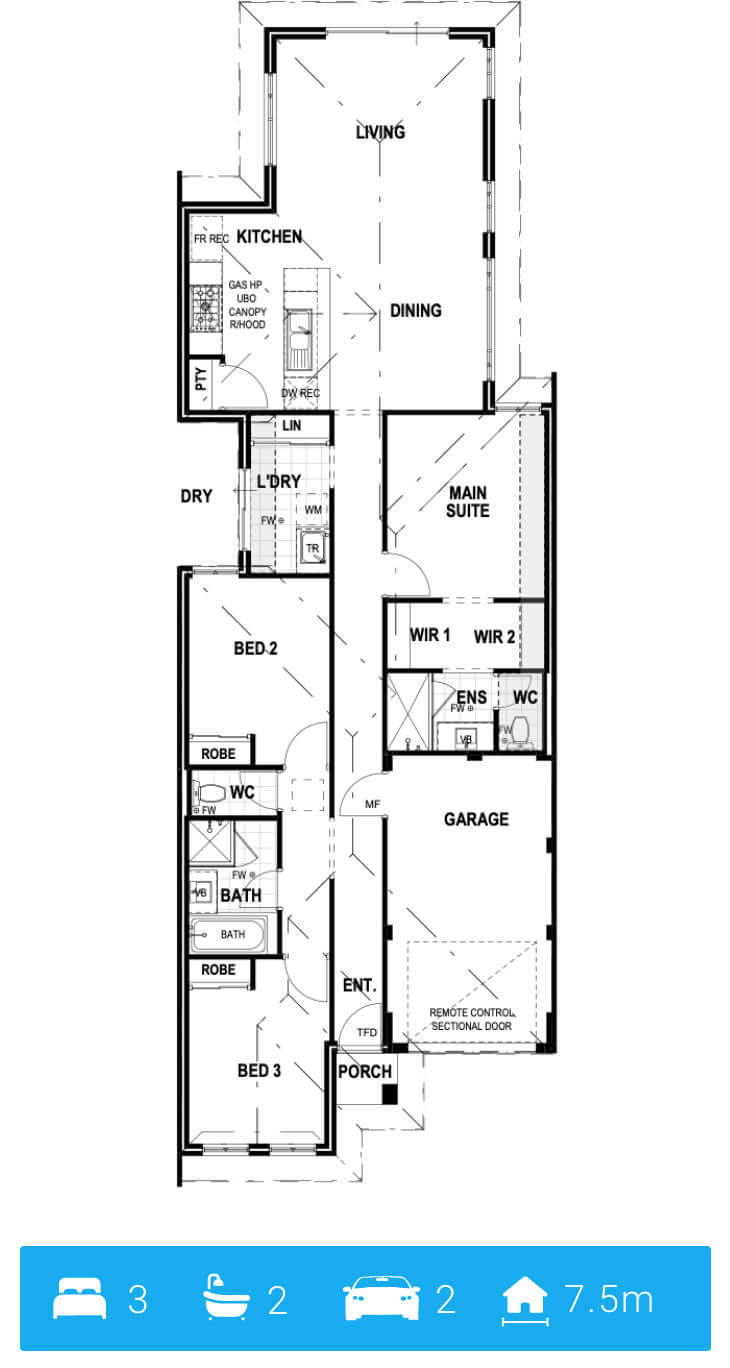
You’ve been dreaming of your very own chateaux for so long – so make sure you choose a floor plan that meets your every need. The master suite is positioned at the rear of the home, ideal for light sleepers looking to escape early morning traffic noise. While the Chateaux is designed for narrow blocks, it doesn’t compromise on the essentials. The master suite has a spacious walk-in robe reminiscent of a Hollywood dressing room, while the open-plan layout makes the kitchen and dining areas feel spacious and seamlessly connected.

Let’s chat

Want to know more about our services or our floor plan pricing?
Schedule a free 10-minute call with us using the button below. We’re here to answer any questions you have!

0
View