Skip to content
The Cherry
The Cherry

all about this floorplan

The Cherry

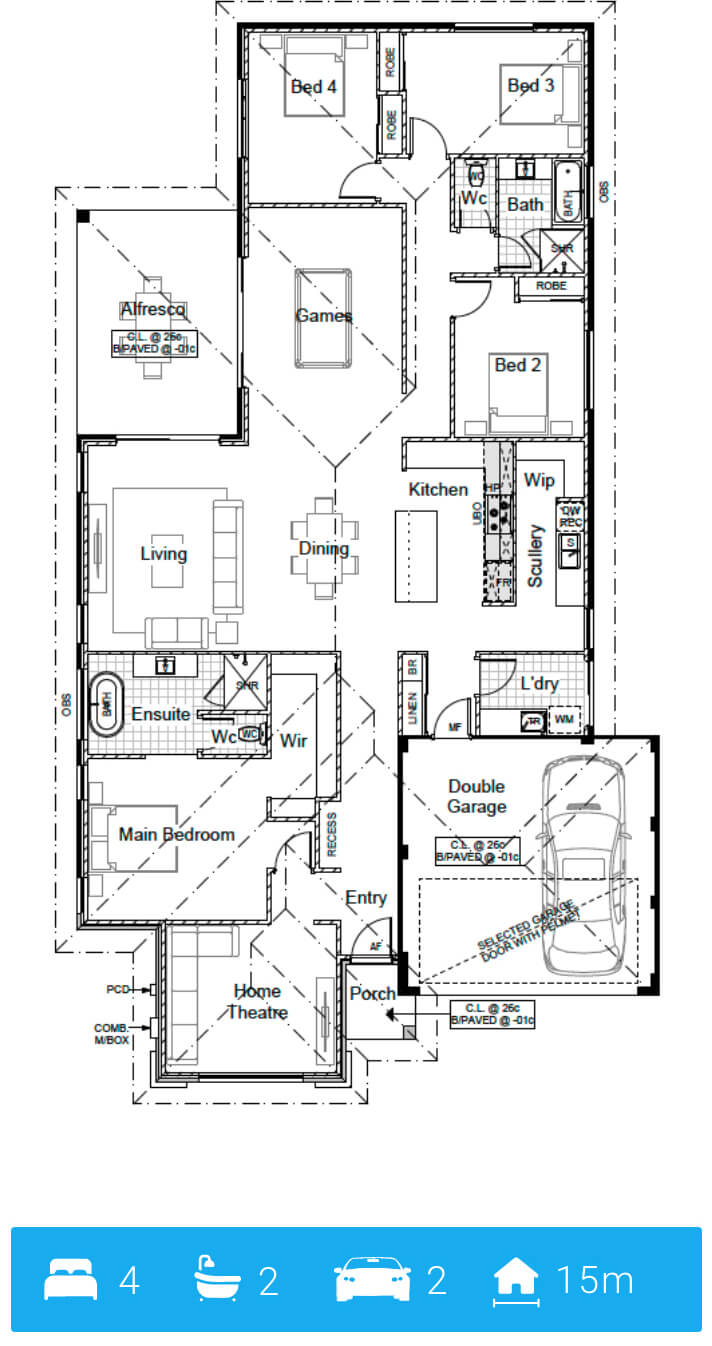
The Ultimate Entertainer’s Dream! Say hello to The Cherry, a home designed for those who love to entertain! At the heart of the home, you’ll find a spacious open-plan living and dining area, seamlessly flowing into the Alfresco—perfect for summer BBQs and weekend gatherings. The huge Games Room is just waiting for a pool table (or whatever fun you have in mind!), while the guest bedrooms are tucked away at the rear, offering privacy for visitors. Add in a double garage, a large Home Theatre, and a massive Master Suite with a walk-in robe and ensuite, and you’ve got a home that’s as stylish as it is functional. The Cherry is all about living large!

Let’s chat

Want to know more about our services or our floor plan pricing?
Schedule a free 10-minute call with us using the button below or fill out a form. We’re here to answer any questions you have!

0
View