Skip to content
The Cullen
The Cullen

all about this floorplan

The Cullen

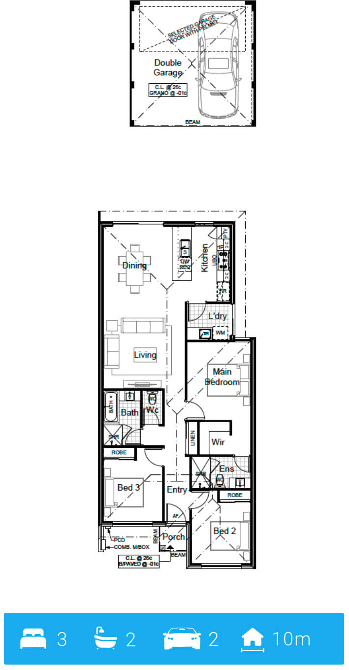
Affordable Without Compromise! Building on a budget? The Cullen proves you don’t have to sacrifice style or comfort! This clever design features two spare bedrooms at the front, while the luxurious Master Suite—complete with a walk-in robe and ensuite—offers a private retreat. The open-plan living and entertaining area flows seamlessly to the rear, creating a bright and airy space for everyday life. Plus, the kitchen with an attached laundry keeps things functional and fuss-free. Smart, stylish, and budget-friendly—The Cullen has it all!

Let’s chat

Want to know more about our services or our floor plan pricing?
Schedule a free 10-minute call with us using the button below or fill out a form. We’re here to answer any questions you have!

0
View