Skip to content
The Cypress
The Cypress

all about this floorplan

The Cypress

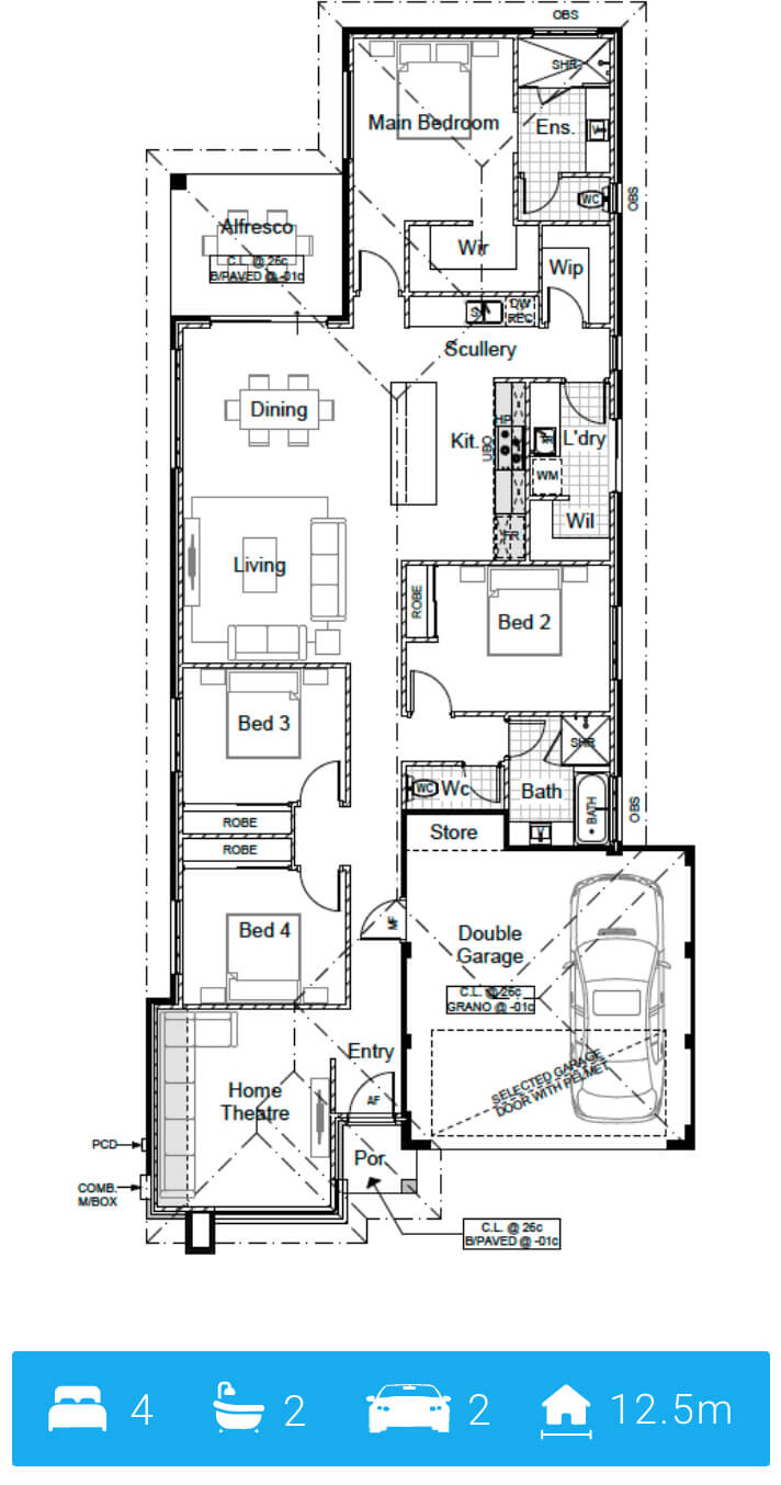
The Perfect Family Balance! Designed with family living in mind, The Cypress strikes the perfect balance between togetherness and personal space. With 4 bedrooms, 2 bathrooms, this home gives Mum and Dad their own private retreat, with the Main Bedroom thoughtfully separated from the rest. In between? A welcoming open plan living, dining, and kitchen area, where family moments happen—whether it’s weekday breakfasts or weekend movie marathons. It’s comfort, connection, and just the right amount of privacy, all wrapped into one smart design!

Let’s chat

Want to know more about our services or our floor plan pricing?
Schedule a free 10-minute call with us using the button below or fill out a form. We’re here to answer any questions you have!

0
View