Skip to content
The Ellery
The Ellery

all about this floorplan

The Ellery

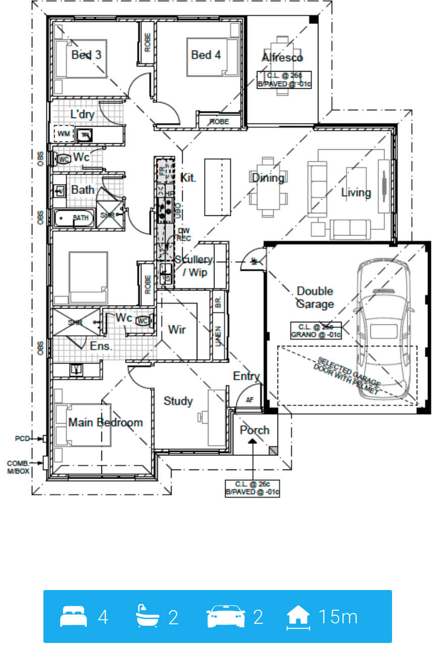
Big on Features, Smart on Space! Don’t let the 15x20m block fool you—The Ellery packs in some serious surprises! With 4 bedrooms and 2 bathrooms, this home proves that smart design makes all the difference. The Main Bedroom isn’t just a room; it’s a retreat, featuring a massive walk-in robe and a luxe double shower. Need a quiet escape? The study area doubles as a Home Office or even a private parent’s retreat. And let’s not forget the Scullery, keeping the Kitchen clutter-free and ready for everything from dinner parties to midnight snacks. The Ellery is where space meets style—without compromise!

Let’s chat

Want to know more about our services or our floor plan pricing?
Schedule a free 10-minute call with us using the button below. We’re here to answer any questions you have!

0
View