all about this floorplan
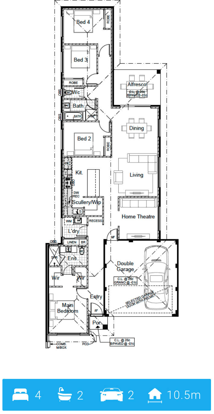
The Elm
Big Living, Smart Design! Think you can’t fit 4 bedrooms, a Theatre, and a Scullery on a 10.5x30m block? Think again—The Elm makes it happen in style! This clever design gives you everything you need, plus a little extra. The extra-long shower in the Ensuite? Pure luxury. The drop zone by the entrance? A stylish space to wow your guests the moment they step inside. It’s proof that great things come in perfectly designed packages!
Tip: Tap on image to zoom
Let’s chat
Want to know more about our services or our floor plan pricing?
Schedule a free 10-minute call with us using the button below or fill out a form. We’re here to answer any questions you have!