Skip to content
The Extra
The Extra

all about this floorplan

The Extra

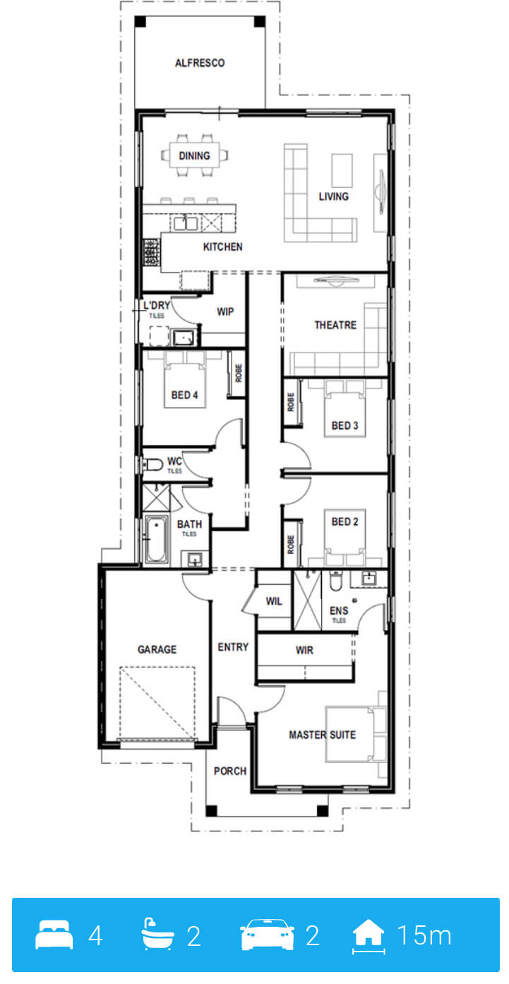
Let’s face it, most of us can be a bit “extra”. It just so happens that this house plan is The EXTRA, its like a match made in heaven! This design includes all the essentials, spare bedrooms, garage, spare bathroom, laundry. However, I know that you are going to just love the spacious Master suite, fit for a King (or Queen) with its attached luxurious ensuite, and walk in his/her robe! Not to mention your very own Theatre room, and huge open entertaining area! This includes your Kitchen, living and dining room, and don’t forget your outdoor Alfresco area!

Let’s chat

Want to know more about our services or our floor plan pricing?
Schedule a free 10-minute call with us using the button below. We’re here to answer any questions you have!

0
View