Skip to content
The Goat
The Goat

all about this floorplan

The Goat

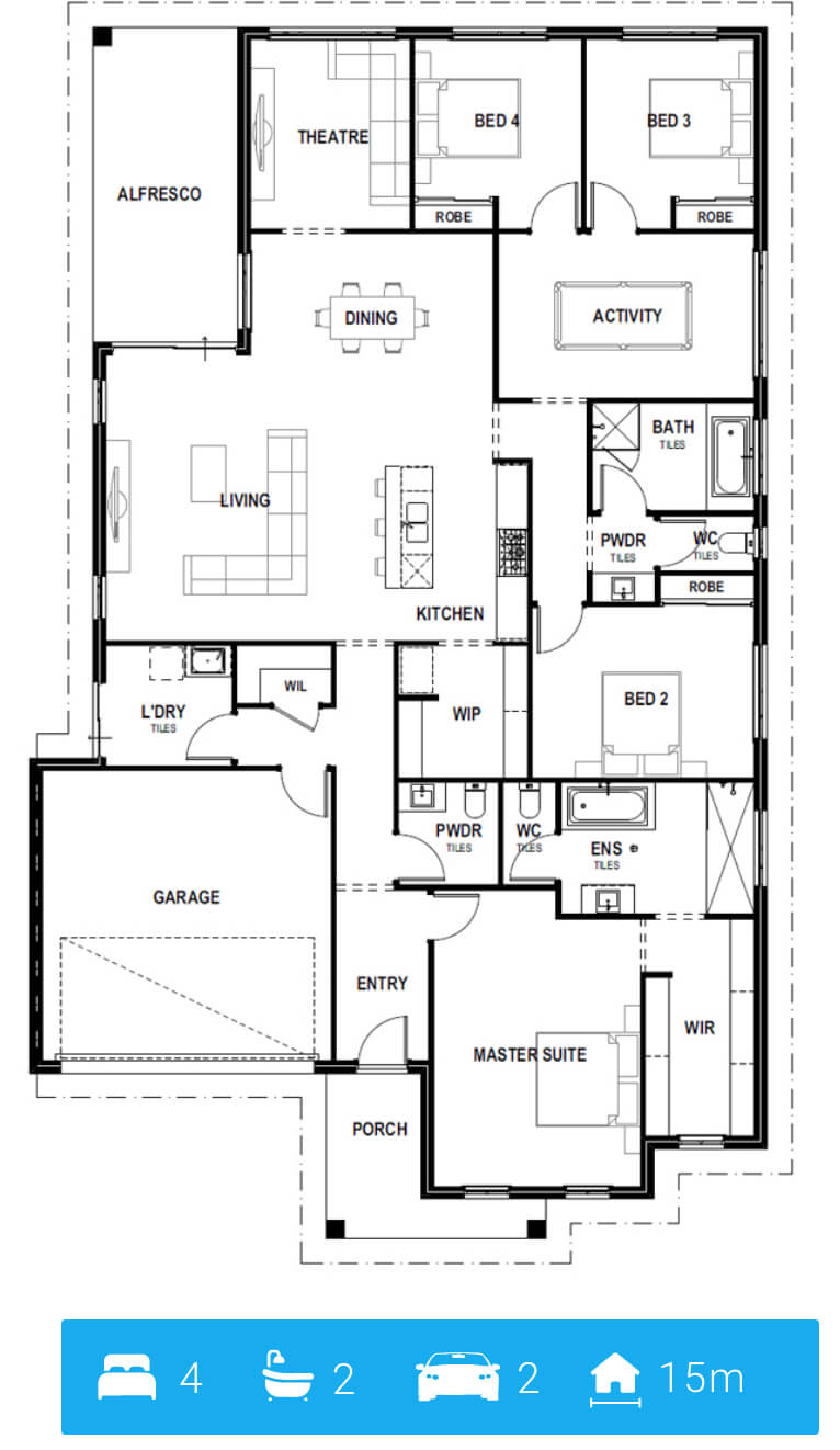
It’s in the name, The Goat is the Greatest Of All Time when it comes to getting the most out of your money, its affordable luxury!

With an impressive 15m frontage and 30m depth, there is so much packed into this design, which is great for families, couples or even someone living alone who wants a home that will make you never want to leave.

An amazing Master suite which is fit for a king or Queen of course!, with a massive Walk-in wardrobe, and an Ensuite that has a freestanding bath!

It has 4 Bedrooms, not to mention that it also has an Activity room, and a Theatre!  There is so much potential for how you can utilise all 450m² of this design!

Like to cook and entertain? No worries, with plenty of bench room and a spacey Walk in Pantry, you will be hosting the next dinner night!

Dimensions: 450m² block with 15m frontage. Depth of 30m.

Let’s chat

Want to know more about our services or our floor plan pricing?
Schedule a free 10-minute call with us using the button below or fill out a form. We’re here to answer any questions you have!

0
View