Skip to content
The Hazel
The Hazel

all about this floorplan

The Hazel

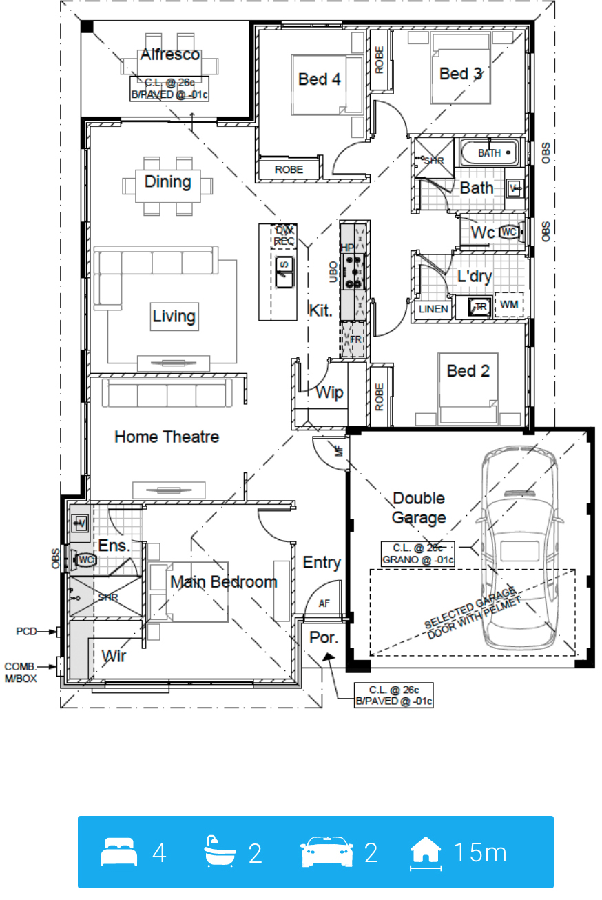
Designed for Easy Living! Life’s a breeze inside The Hazel, where smart design meets everyday comfort. With 4 bedrooms, 2 bathrooms, and a 15m frontage, this home is packed with features that make all the difference. A walk-in robe for you, a walk-in pantry for all the snacks—space is never an issue here! Plus, the Theatre is tucked away from the main living area, so movie lovers can escape while the rest of the household does their thing. It’s all about keeping everyone happy—effortlessly!

Let’s chat

Want to know more about our services or our floor plan pricing?
Schedule a free 10-minute call with us using the button below or fill out a form. We’re here to answer any questions you have!

0
View