Skip to content
The Hemlock
The Hemlock

all about this floorplan

The Hemlock

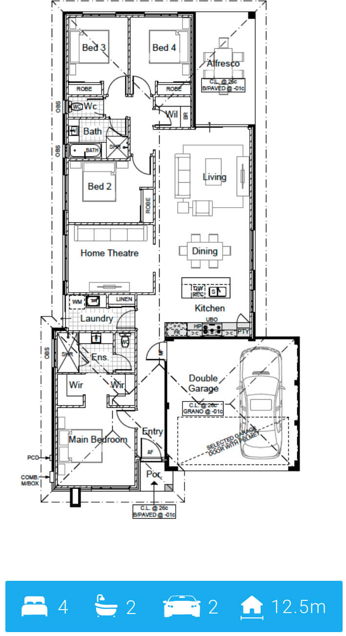
Space for Everything (and Everyone!) Looking for a home that just gets family life? The Hemlock has you covered! With 4 bedrooms, 2 bathrooms, this design is all about space and practicality. The minor bedrooms come with built-in robes, while the Main Bedroom steps it up with a double walk-in robe—because sharing is great, but extra storage is better! A Theatre adds that extra living zone, and the walk-in linen keeps everything organized for busy households. It’s everything you need, wrapped up in one smart, stylish home!

Let’s chat

Want to know more about our services or our floor plan pricing?
Schedule a free 10-minute call with us using the button below. We’re here to answer any questions you have!

0
View