Skip to content
The Independence
The Independence

all about this floorplan

The Independence

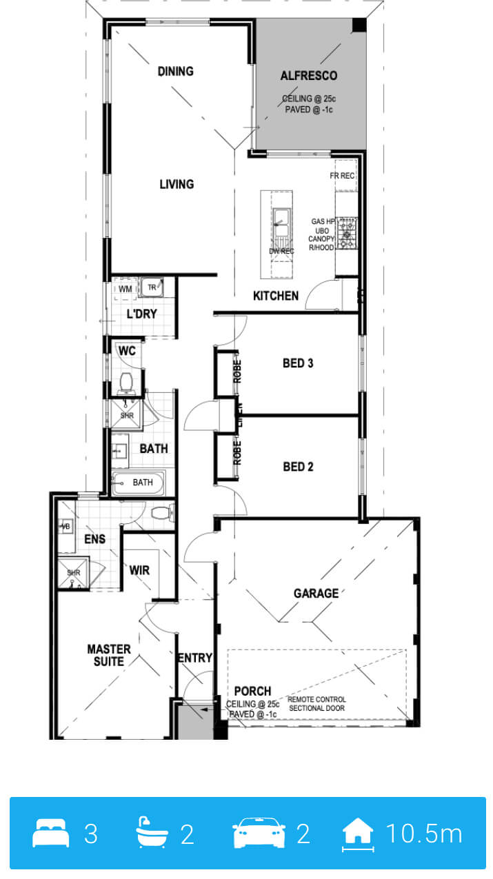
Independence has never felt so good. This 168m² layout features a master suite with an ensuite and walk-in robe, along with two other spacious, centrally located minor bedrooms. The kitchen’s island bench is ideal for home chefs who can entertain in the luxe alfresco or dining room, showing their guests what true independence looks like.

Let’s chat

Want to know more about our services or our floor plan pricing?
Schedule a free 10-minute call with us using the button below or fill out a form. We’re here to answer any questions you have!

0
View