Skip to content
The Ironwood
The Ironwood

all about this floorplan

The Ironwood

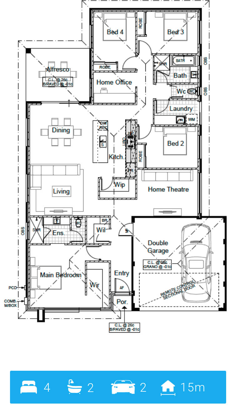
A Home the Whole Family Will Love! Designed with everyone in mind, The Ironwood is packed with features to keep the whole family happy. The spacious Theatre sets the scene for epic movie nights, while the cleverly designed study nook is perfect for growing teenagers (or anyone who needs a quiet workspace!). It’s a home that blends entertainment, functionality, and style, making everyday living just that little bit easier!

Let’s chat

Want to know more about our services or our floor plan pricing?
Schedule a free 10-minute call with us using the button below or fill out a form. We’re here to answer any questions you have!

0
View