Skip to content
The It’s Giving
The It’s Giving

all about this floorplan

The It’s Giving

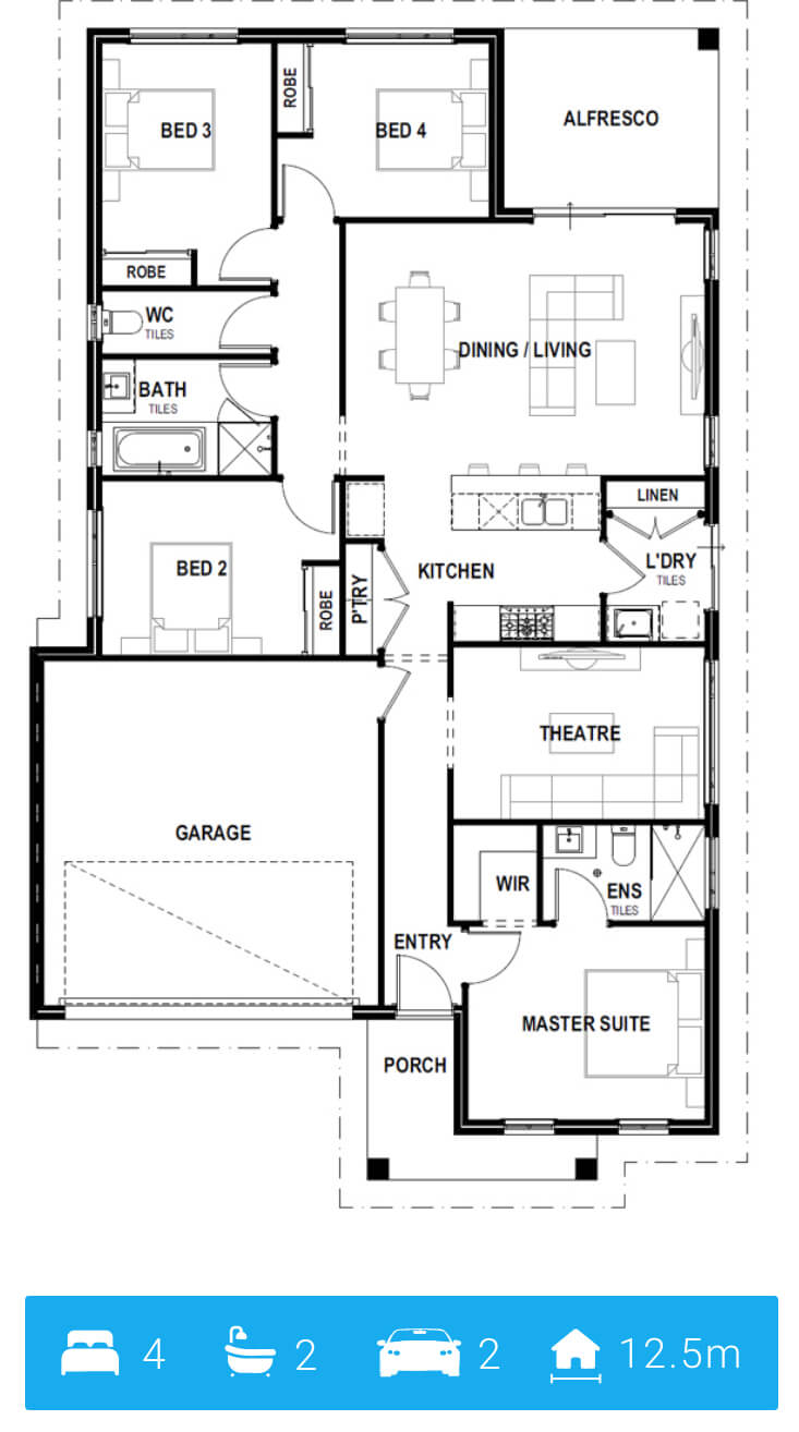
A design that keeps “giving” (pun intended). The It’s Giving is a well-rounded base design which you can comfortably turn into your ‘forever home’. 

This design is perfect for a 375m² block, and focuses entertainment at the front, featuring your Theatre, Guest Bedrooms and Guest Bathroom, which is fantastic for when you have company, everything you need in proximity.

At the back, you have your large Master Suite, with your large Walk in Robe and Ensuite. The layout that The It’s Giving offers is perfect to keep your personal space separate from your guests, and still have all the features to celebrate company.

Block dimensions 375m² with a 12.5m frontage.

Let’s chat

Want to know more about our services or our floor plan pricing?
Schedule a free 10-minute call with us using the button below. We’re here to answer any questions you have!

0
View