Skip to content
The Larch
The Larch

all about this floorplan

The Larch

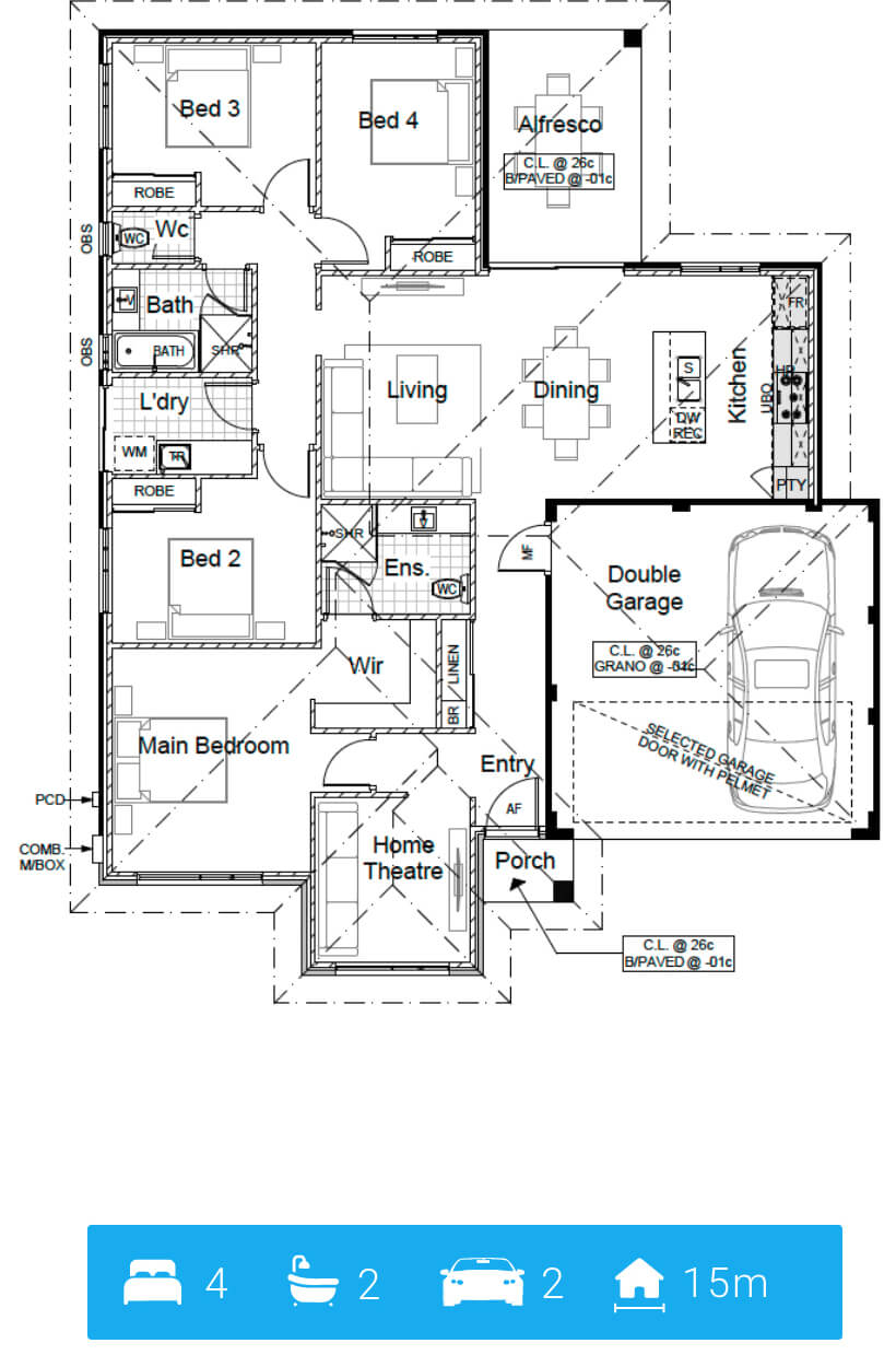
Where Style Meets Family Living! Designed for comfort and connection, The Larch is the perfect blend of functionality and flair. With four spacious bedrooms and a generous open-plan living area, this home creates a harmonious space to grow, entertain, and unwind. Need more room to relax? The front Theatre offers an additional living zone—whether it’s for movie marathons, game nights, or a quiet escape. It’s family living, done right!

Let’s chat

Want to know more about our services or our floor plan pricing?
Schedule a free 10-minute call with us using the button below or fill out a form. We’re here to answer any questions you have!

0
View