Skip to content
The Laurel
The Laurel

all about this floorplan

The Laurel

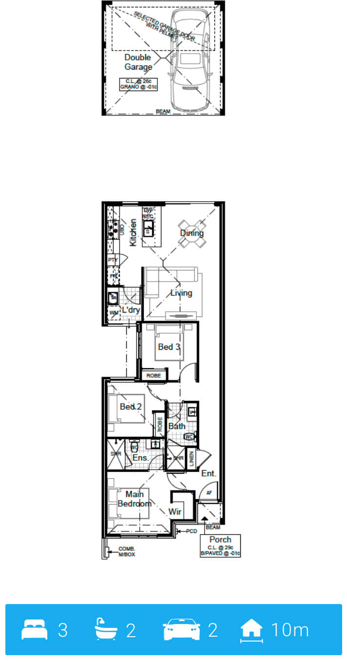
Smart, Stylish & Perfectly Designed! The Laurel makes the most of a 10m frontage, proving that smart design goes a long way! The rear-access double garage gives you plenty of room for your toys! The open-plan living and dining area, seamlessly connects to the backyard—perfect for entertaining or unwinding in the fresh air. The two spare bedrooms come with their own separate bathroom, giving guests (or the kids) their own space. Meanwhile, the Master Bedroom sits at the front of the home, complete with a walk-in wardrobe and private ensuite. Compact, functional, and effortlessly stylish—The Laurel is ready to impress!

Let’s chat

Want to know more about our services or our floor plan pricing?
Schedule a free 10-minute call with us using the button below. We’re here to answer any questions you have!

0
View