Skip to content
The Lilac
The Lilac

all about this floorplan

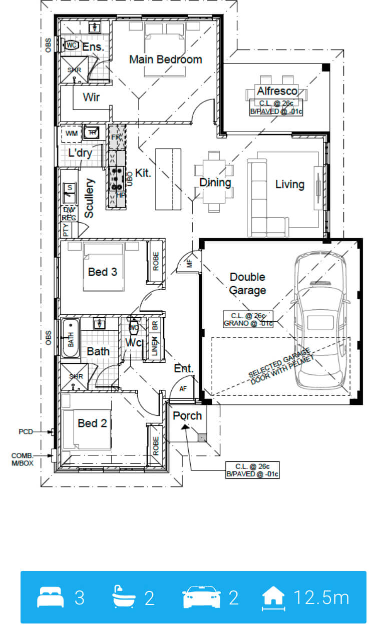
The Lilac

Big on Space, Smart on Design! Don’t let the 12.5x20m block fool you—The Lilac is all about maximizing space without compromise!

The minor bedrooms are tucked away from the main living area, while the rear-positioned Main Bedroom gives you the peace and quiet you deserve. But the real showstopper? The open-plan living, where the Scullery adds a sleek, modern touch while keeping your Kitchen clutter-free. Smart, stylish, and surprisingly spacious—The Lilac proves that great things come in well-designed packages!

Let’s chat

Want to know more about our services or our floor plan pricing?
Schedule a free 10-minute call with us using the button below or fill out a form. We’re here to answer any questions you have!

0
View