Skip to content
The Maple
The Maple

all about this floorplan

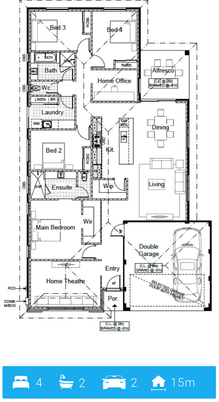
The Maple

A Home That Sets the Scene! Step inside The Maple, and you’re instantly greeted by a lavish Theatre, letting you know this home is all about comfort and style. At the heart of the home, the open-plan living area seamlessly flows to the Alfresco, making entertaining effortless. Need extra space? The Activity area near the minor bedrooms is a flexible zone—whether it’s a playroom, study nook, or chill-out spot, it’s yours to make your own. The Maple is where smart design meets everyday luxury!

Let’s chat

Want to know more about our services or our floor plan pricing?
Schedule a free 10-minute call with us using the button below or fill out a form. We’re here to answer any questions you have!

0
View