Skip to content
The Mood
The Mood

all about this floorplan

The Mood

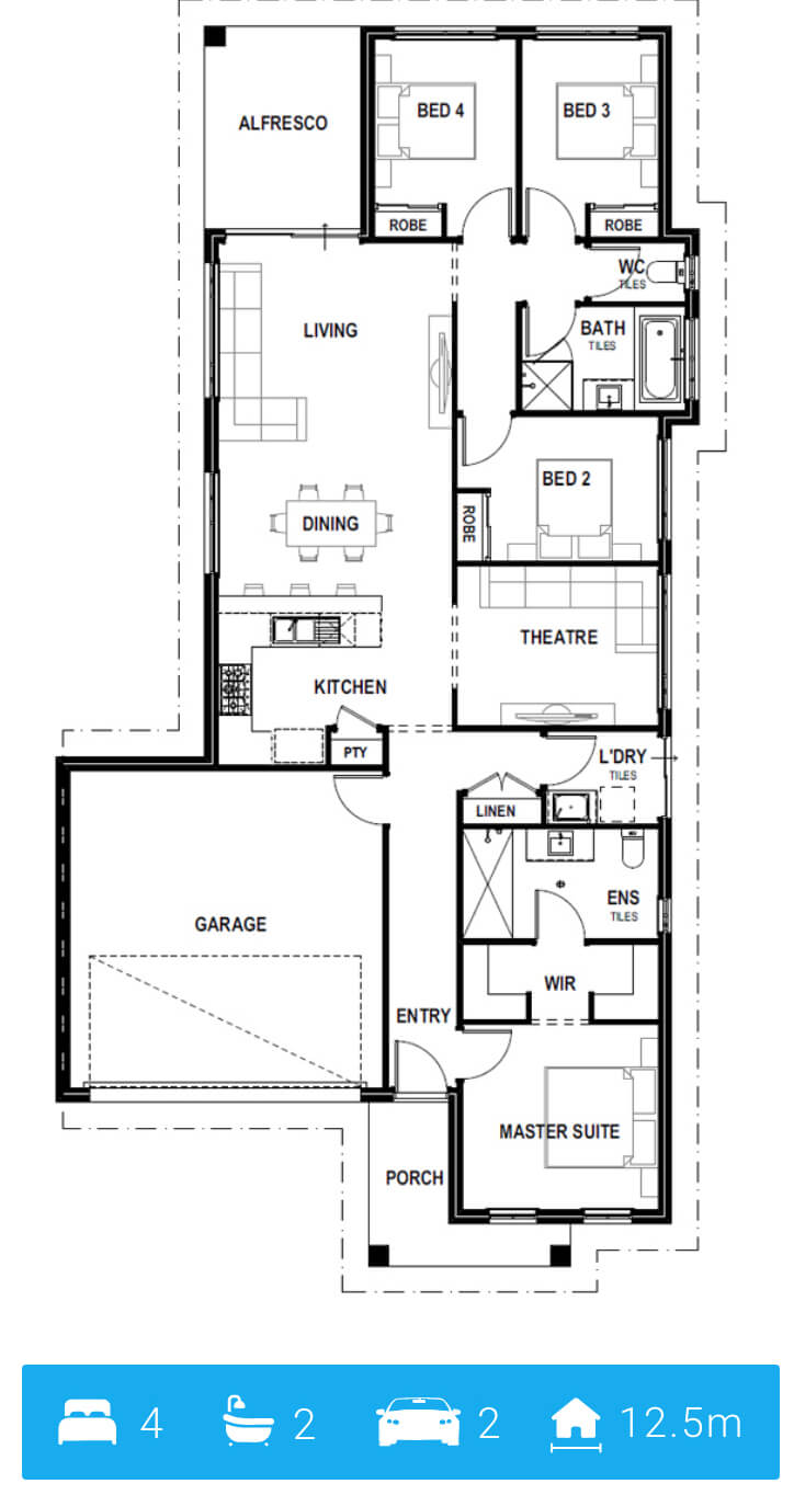
Introducing *The Mood*  –  More than just a house design, and exactly what it’s called, a mood! Perfect for a 12.5m² block, The Mood will set the tone for any lifestyle you are seeking – an entertainer? Family life? Just the two of you? No matter where you are at in life, this is the design for you!

Starting with a huge Master Bedroom located at the front of the house, which includes a massive Walk in Robe – more than enough for all your shopping sprees, with an attached Ensuite. Next the design opens up into a large entertaining area, which has your Kitchen, Dining and Living area, ready for gatherings, family dinners or quiet nights at home in front of the TV. With a total of 4 bedrooms, cozy attached Theatre room and outside alfresco area – This is The Mood for you!

Let’s chat

Want to know more about our services or our floor plan pricing?
Schedule a free 10-minute call with us using the button below or fill out a form. We’re here to answer any questions you have!

0
View