Skip to content
The Musings
The Musings

all about this floorplan

The Musings

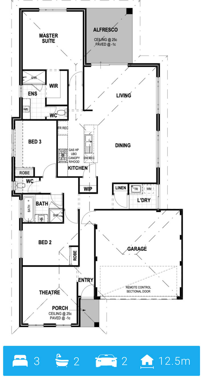
Musing about this flawless home design, it’s clear that every detail has been well thought out. The master suite is built for luxury living, complete with a dedicated walk-in robe and ensuite featuring a double-sized shower and private toilet. The minor bedrooms share a bathroom with a sizeable tub, perfect for kids or grown-ups looking to unwind. Open-plan living allows for easy entertaining, with an alfresco area that connects seamlessly to the main living space. Lastly, Musings includes a dedicated theatre room for cosy movie nights with family and friends (and, of course, plenty of movie snacks!).

Let’s chat

Want to know more about our services or our floor plan pricing?
Schedule a free 10-minute call with us using the button below. We’re here to answer any questions you have!

0
View