Skip to content
The No Cap
The No Cap

all about this floorplan

The No Cap

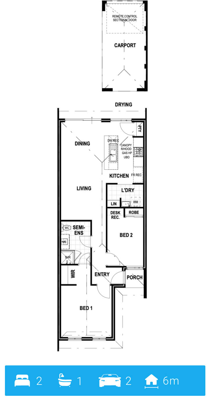
Small frontage, big personality—The No Cap keeps it sleek, smart, and stylish on a 6m frontage block!

This 2-bedroom, 1-bathroom home proves you don’t need a mansion to live large. Your Master Bedroom comes with a walk-in robe and semi-ensuite, giving you that luxe feel without wasted space. The second bedroom is perfect for a guest, home office, or whatever suits your lifestyle.

The open-plan living, dining, and kitchen area stretches out towards the rear, making the most of the space while keeping things airy and light. The kitchen is designed for efficiency, complete with a clever built-in laundry nook to keep things tidy.

And yes, you’ve got a double carport, so parking is a breeze!

Perfect for first-home buyers, downsizers, or those who just love a minimalist, low-maintenance lifestyle—No Cap, this one’s a winner!

Let’s chat

Want to know more about our services or our floor plan pricing?
Schedule a free 10-minute call with us using the button below or fill out a form. We’re here to answer any questions you have!

0
View