Skip to content
The Perfection
The Perfection

all about this floorplan

The Perfection

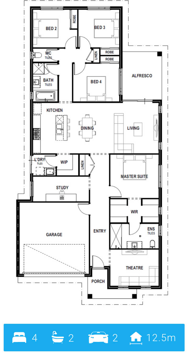
Do you catch yourself looking in the mirror more often than you should? If you answer is yes, then “THE PERFECTION” is your spirit animal! Carefully designed in a way that maximises the visual appeal – Once you walk through the front door, you are never going to want to leave! Walking down the central hallway, you will find yourself at the luxurious Master Bedroom which has a huge, attached walk in robe, perfect to store all your favourite threads (and the wall space to hang a few more mirrors) On your way to the main entertaining area, you have a Cozy theatre room, ready to be decked out in your Instagram inspired décor. Big open entertaining area which houses your Living Room, Dining Room and Kitchen – and a nest of 3 spare bedrooms at the rear, with their own accompanying Bathroom and Toilet. If you are looking for a house design that is as amazing as you, look no further than “THE PERFECTION”.

Let’s chat

Want to know more about our services or our floor plan pricing?
Schedule a free 10-minute call with us using the button below or fill out a form. We’re here to answer any questions you have!

0
View