Skip to content
The Prime
The Prime

all about this floorplan

The Prime

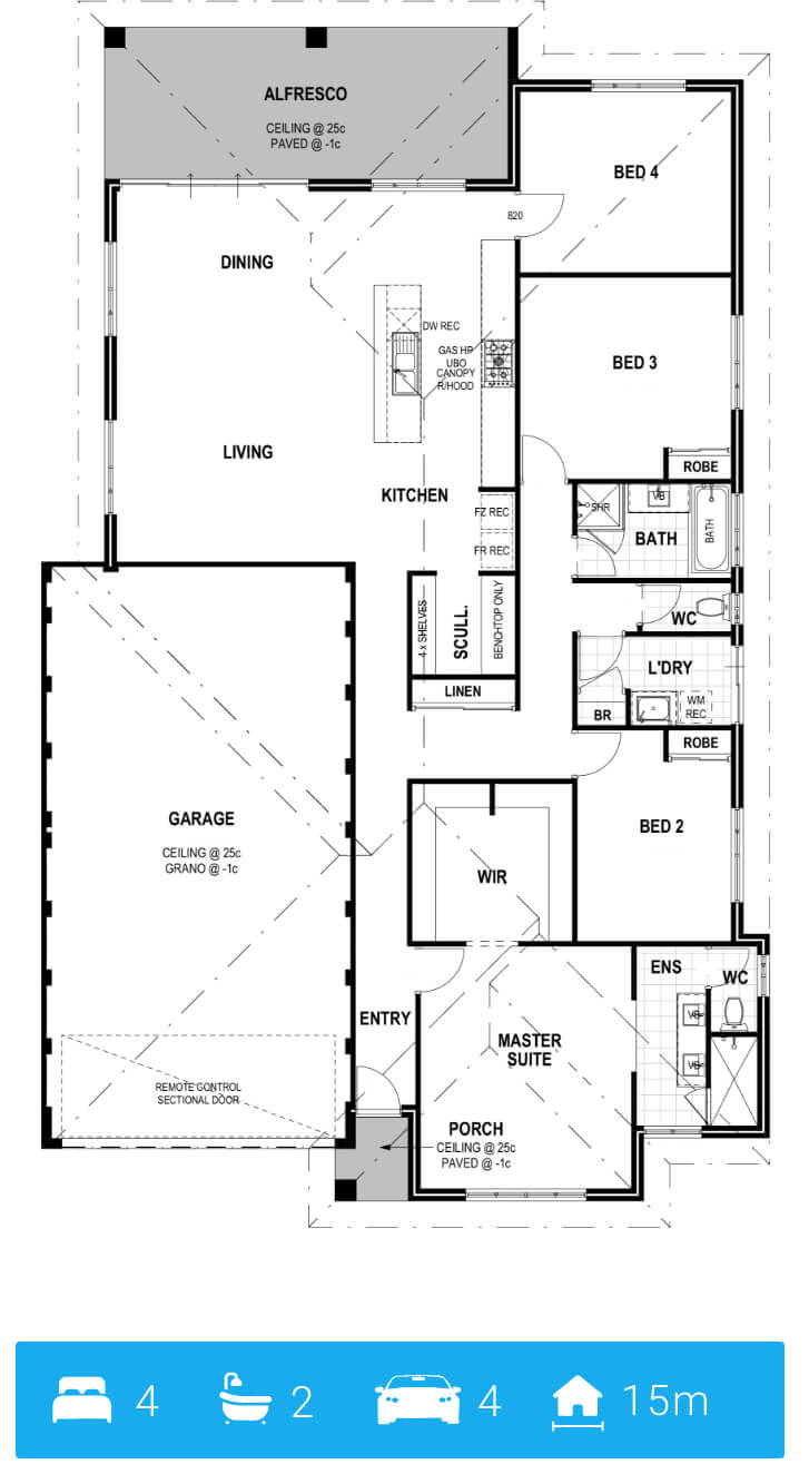
The Prime isn’t just a home — it’s a standard setter. Designed for those who want space, style, and substance without settling, this impressive 4-bedroom, 2-bathroom design delivers thoughtfully crafted living.

Right from the oversized entry, you’ll feel the difference. Flowing, open-plan living spaces are made for connection — from the light-filled dining area to the spacious kitchen and scullery that’ll have your inner chef smiling.

The alfresco stretches the living outdoors, while the smart layout keeps the bedrooms private, tucked away for maximum chill time.

The master suite is all about laid-back luxury — with a huge walk-in robe and an ensuite that feels like your own private spa. Meanwhile, the three additional bedrooms are anything but an afterthought: oversized, well-placed, and ready for growing families, work-from-home setups, or serious guest spoiling.

Top it off with an quad garage — big enough for the daily drivers, the weekend toys, and still have room to spare.

Bold, beautiful, and built for living large.

Let’s chat

Want to know more about our services or our floor plan pricing?
Schedule a free 10-minute call with us using the button below. We’re here to answer any questions you have!

0
View