Skip to content
The Sandalwood
The Sandalwood

all about this floorplan

The Sandalwood

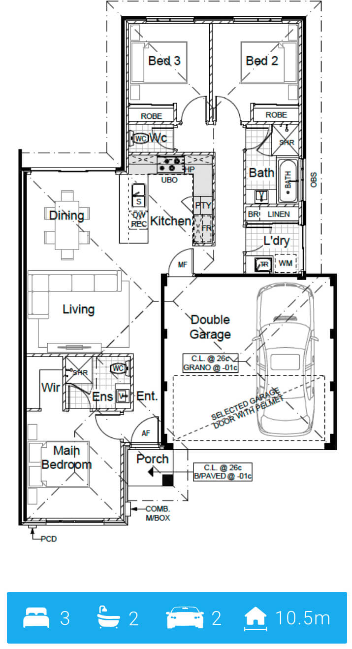
Smart, Stylish & Perfect for First Home Buyers! Designed to make the most of a 10.5 x 20m block, The Sandalwood proves that great things come in cleverly designed packages! The U-shaped kitchen offers plenty of bench space for cooking up a storm, while the oversized linen cupboard in the Laundry ensures you’ll never run out of storage. And for a little extra privacy? The minor bedrooms are zoned away from the main living area, so everyone gets their own space. The Sandalwood is the perfect first home that feels anything but small!

Let’s chat

Want to know more about our services or our floor plan pricing?
Schedule a free 10-minute call with us using the button below. We’re here to answer any questions you have!

0
View