Skip to content
The Socialite
The Socialite

all about this floorplan

The Socialite

Love being the one who brings people together? The Socialite was made for you.

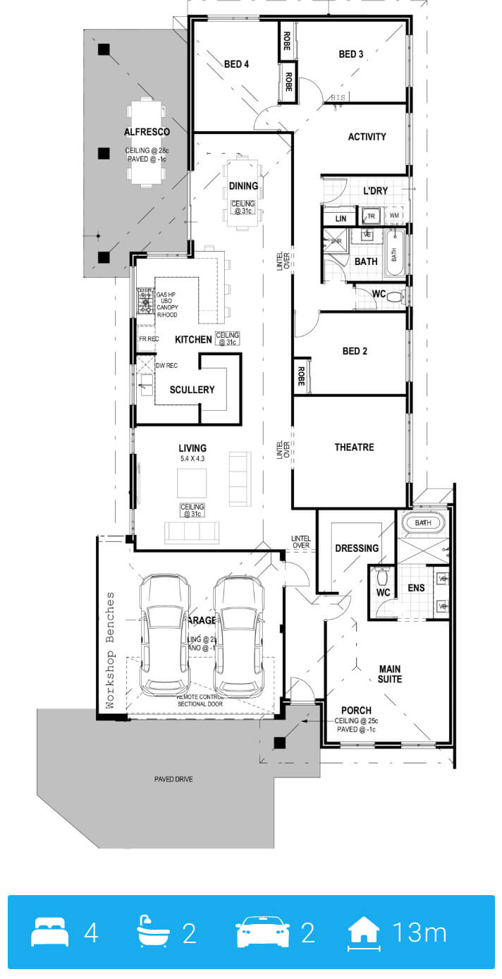
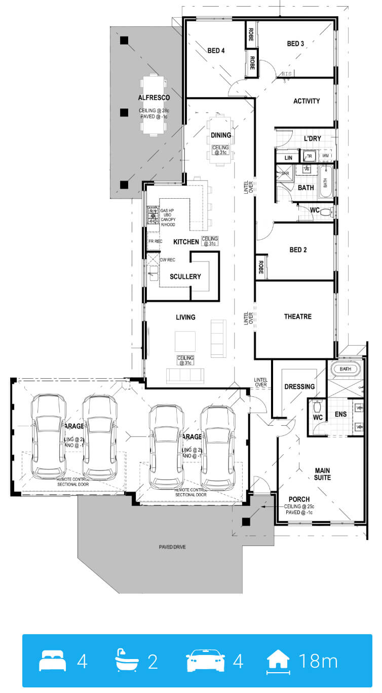
This cleverly designed 4-bedroom, 2-bathroom entertainer’s dream nails the balance between everyday comfort and next-level social style.

Step into open-plan living done right: a big, bright kitchen (with a scullery!) opens up to a massive living and dining area, flowing effortlessly onto a stylish alfresco. Whether it’s family dinners, lazy Sundays, or a packed-out party, The Socialite always shows up ready to host.

There’s space for everyone, too. A dedicated theatre for movie marathons, an activity zone for kids (or a sneaky home office), and four well-sized bedrooms — including a luxe master suite with a private dressing room and ensuite — mean no one’s left out of the good life.

Need room for your toys and hobbies? We’ve got you. Depending on the version you choose, The Socialite comes with up to a triple garage and workshop options.

Light-filled spaces, stylish flow, and all the right vibes — The Socialite is the life of the party, every day of the week.

Let’s chat

Want to know more about our services or our floor plan pricing?
Schedule a free 10-minute call with us using the button below or fill out a form. We’re here to answer any questions you have!

0
View