Skip to content
The Tulip
The Tulip

all about this floorplan

The Tulip

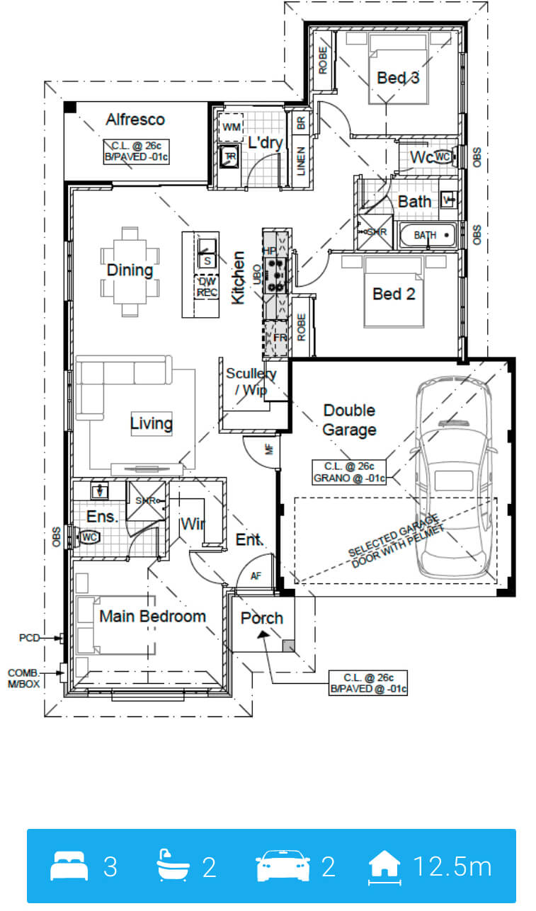
The Perfect Blend of Space & Comfort! The Tulip is designed to give you the best of both worlds—open-plan living for connection and intimate spaces for when you need a little privacy. The Main Bedroom is tucked away at the front for a peaceful retreat, while the remaining bedrooms are grouped at the rear, creating a cozy family zone with the second bathroom centrally located for easy access. And let’s talk about the Kitchen—with a Scullery and walk-in pantry, you get all the space you need to cook, prep, and store without the clutter. The Tulip is where smart design meets everyday comfort!

Let’s chat

Want to know more about our services or our floor plan pricing?
Schedule a free 10-minute call with us using the button below. We’re here to answer any questions you have!

0
View