Skip to content
The Tupelo
The Tupelo

all about this floorplan

The Tupelo

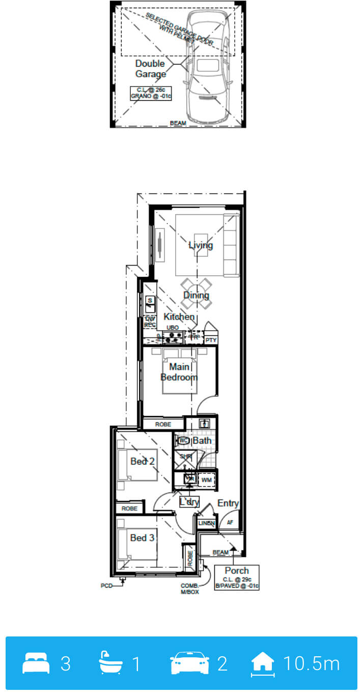
Compact, Clever & Full of Style! The Tupelo proves that great things come in efficient, well-designed packages! Right off the entry, you’ll find two guest bedrooms and a guest bathroom, perfectly positioned for privacy and convenience. Further down the hall, the Master Suite awaits, offering a peaceful retreat. The heart of the home is the open-plan living and dining area, seamlessly extending to the backyard, creating the perfect indoor-outdoor flow. Plus, with a double garage for easy access, this home is as practical as it is stylish. Small frontage, big impact—The Tupelo is designed to make the most of every space!

Let’s chat

Want to know more about our services or our floor plan pricing?
Schedule a free 10-minute call with us using the button below or fill out a form. We’re here to answer any questions you have!

0
View