Skip to content
The Vida
The Vida

all about this floorplan

The Vida

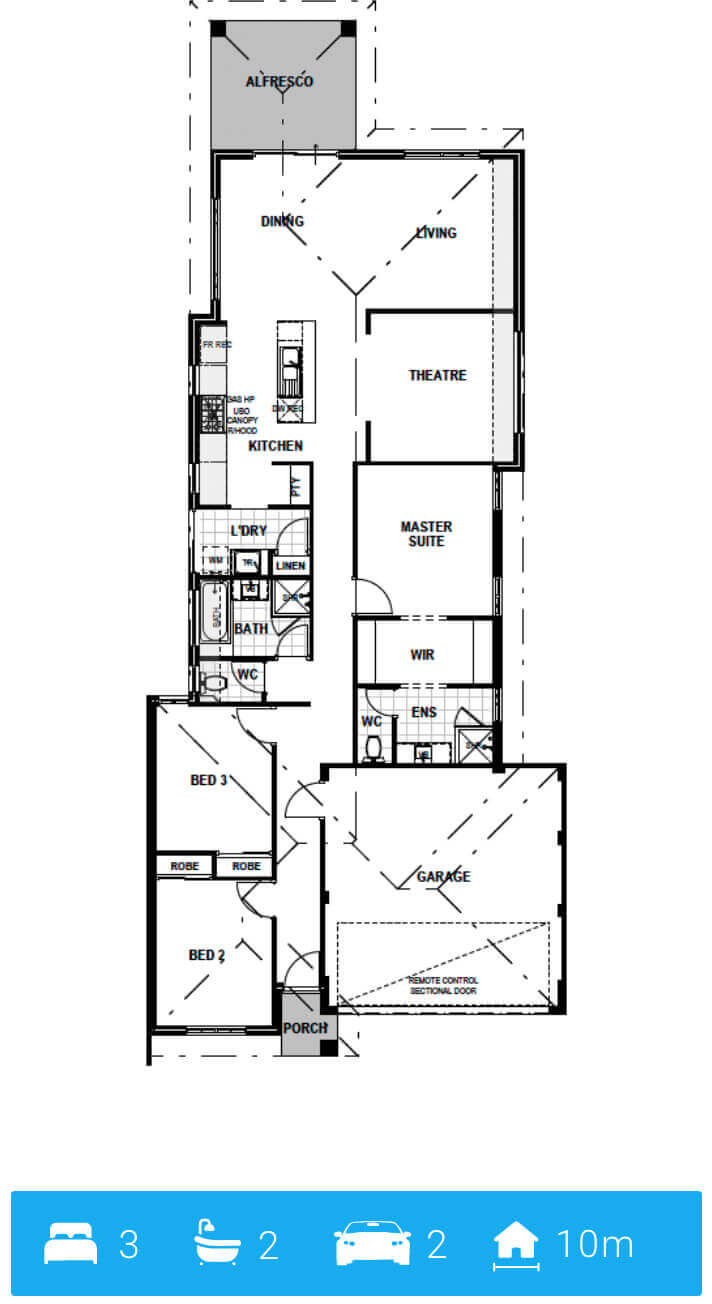
Welcome to The Vida – a home that’s all about living life to the fullest! With a compact yet striking 10m frontage, this home packs all the punch. Step into the double garage, and make your way to the two generously sized spare bedrooms at the front – perfect for guests or family.

The heart of this beauty? The master suite, centrally located, with a room-sized walk-in robe that will make you wonder how you ever lived without it.

Need more? How about a huge theatre room for those epic movie marathons? Or a spacious open-plan living, dining, and kitchen area that flows effortlessly into the alfresco – making indoor-outdoor living a breeze.

The Vida is all about balance – spacious, stylish, and packed with everything you need to live life well.

Let’s chat

Want to know more about our services or our floor plan pricing?
Schedule a free 10-minute call with us using the button below or fill out a form. We’re here to answer any questions you have!

0
View