Skip to content
The Vine
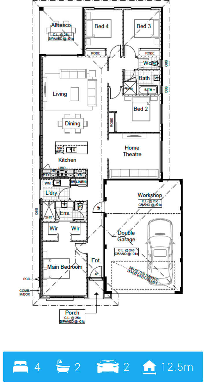
The Vine

all about this floorplan

The Vine

A Home with Endless Possibilities! There’s so much to love about The Vine—where do we even start? The open-plan living area flows seamlessly to the Alfresco, making indoor-outdoor living a breeze. The spacious Main Bedroom is a dream, complete with double walk-in robes and an extra-long shower for that little touch of luxury. But the real standout? The workshop space in the garage—use it for tools, a home gym, extra storage, or whatever suits your lifestyle. The Vine isn’t just a house—it’s a home designed for the way you live!

Let’s chat

Want to know more about our services or our floor plan pricing?
Schedule a free 10-minute call with us using the button below. We’re here to answer any questions you have!

0
View