Skip to content
The Viral
The Viral

all about this floorplan

The Viral

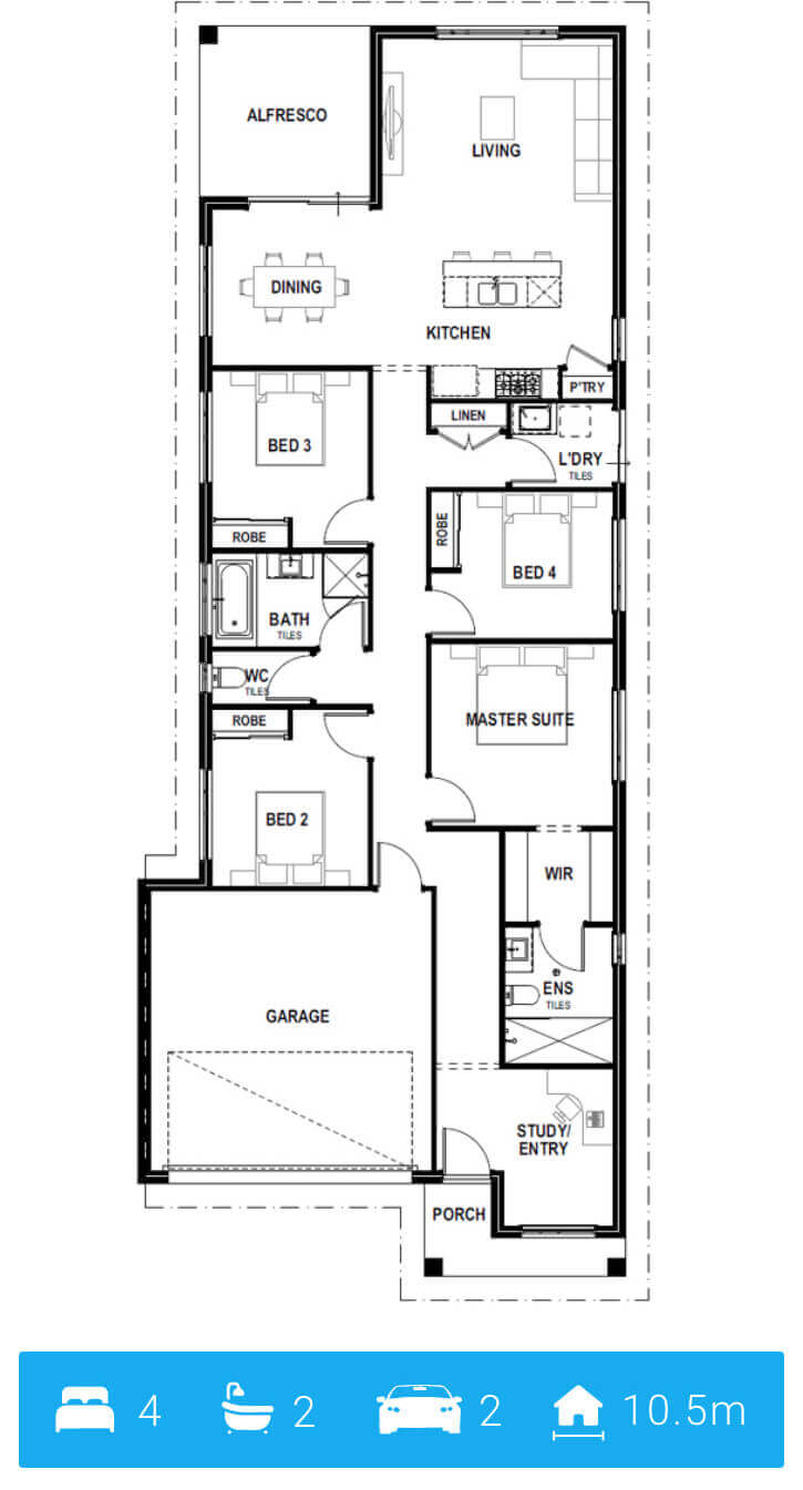
*THE VIRAL* is the next biggest thing! Designed to fit on your narrower blocks, and still provide the punch of a fully equipped 4 x 2 house plan! No one ever knows what video is going to be next to blow up on social media next for their ’15 minutes of fame’ – But I can assure you *THE VIRAL* is going to be around for a while! Starting with a spacious open Study/ Entry, and down the hallway to a large Master Suite, with an adjoining Walk in Robe and Ensuite. Including 3 Spare Bedrooms, with a second Bathroom for guests to stay. The rear is the place for entertainment, Large ‘open living’ style area, where your Dining Area, Living Room and Kitchen are housed, and opens right up to the outdoor Alfresco area. Once you discover it, *THE VIRAL* will live rent free in your head as your future dream home!

Let’s chat

Want to know more about our services or our floor plan pricing?
Schedule a free 10-minute call with us using the button below or fill out a form. We’re here to answer any questions you have!

0
View