Skip to content
The Willow
The Willow

all about this floorplan

The Willow

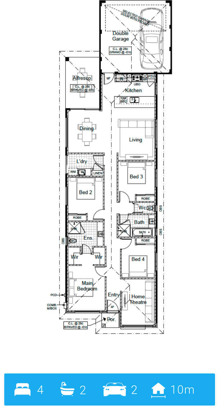
Big on Space, Smart on Design! You won’t believe how much fits into The Willow! Designed for a 10m cottage lot, this home packs in four bedrooms and a Theatre at the front, giving you the perfect mix of entertainment and relaxation. And let’s talk convenience—the rear garage gives you quick and easy access straight into the kitchen and open-plan living area, so unloading groceries (or sneaking in late-night snacks) has never been easier. Spacious, stylish, and effortlessly functional—that’s The Willow!

Let’s chat

Want to know more about our services or our floor plan pricing?
Schedule a free 10-minute call with us using the button below or fill out a form. We’re here to answer any questions you have!

0
View