Skip to content
The Bachelor
The Bachelor

all about this floorplan

The Bachelor

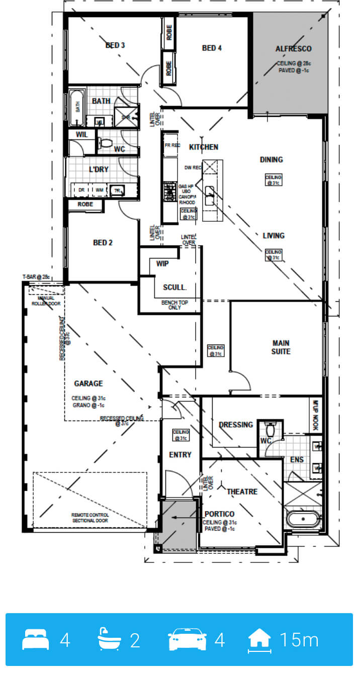
The Bachelor — The Ultimate Catch. Looking for a home that’s got it all? The Bachelor is the total package — charming, stylish, and seriously ready to commit (to your lifestyle dreams, that is).

With a big open-plan living area made for hosting your mates or just sprawling out in comfort, a dreamy main suite complete with dressing room, and even a private theatre for binge nights, The Bachelor knows how to treat you right. Plus, with a huge 70m² garage and a scullery tucked behind the kitchen, you’ll have space for all the toys and the midnight snacks.

Four bedrooms, plenty of breathing room, and an alfresco that says “yes” to sunset BBQs? Talk about relationship goals. Big on style. Big on space. 100% heartthrob material.

Let’s chat

Want to know more about our services or our floor plan pricing?
Schedule a free 10-minute call with us using the button below or fill out a form. We’re here to answer any questions you have!

0
View