Skip to content
The Generous
The Generous

all about this floorplan

The Generous

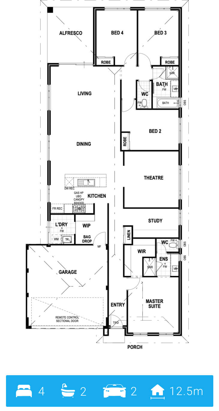
With a name like The Generous, you know you’re in for something special! This home is all about space, style, and smart design. Right at the front, the Master Suite gives you a private retreat, complete with a walk-in robe and ensuite. Need a work-from-home setup? You got it—there’s a dedicated Study/Home Office so you can stay productive in style. When it’s time to kick back, the Large Theatre Room is ready for movie marathons, while the expansive open-plan living, dining, and kitchen area flows effortlessly out to the Alfresco—hello, summer entertaining! At the rear, three guest bedrooms and a spare bathroom provide a peaceful space for family or visitors. And let’s not forget the double garage, because a home this good deserves all the convenience. Spacious, stylish, and packed with features—The Generous truly lives up to its name!

Let’s chat

Want to know more about our services or our floor plan pricing?
Schedule a free 10-minute call with us using the button below. We’re here to answer any questions you have!

0
View