Skip to content
The Goals
The Goals

all about this floorplan

The Goals

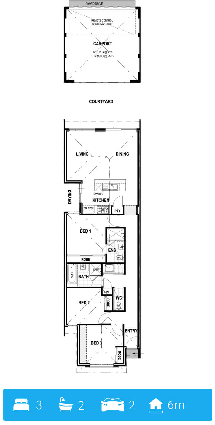
The true definition of home goals, this 3-bed, 3-bath layout efficiently allocates space to make the most of compact blocks. Despite its slim design, the open-plan living area flows seamlessly, with the kitchen, dining and living rooms overlooking the courtyard. Storage is sorted with a built-in pantry, linen cupboard, and built-in robes in each bedroom.

Let’s chat

Want to know more about our services or our floor plan pricing?
Schedule a free 10-minute call with us using the button below. We’re here to answer any questions you have!

0
View