Skip to content
The Iconic
The Iconic

all about this floorplan

The Iconic

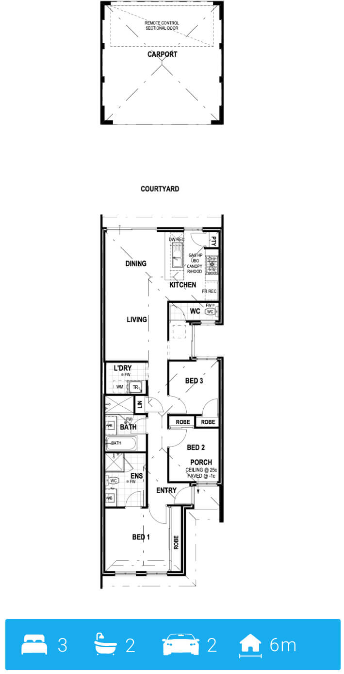
Designed for small blocks, this cosy, stylish home design doesn’t skimp on the details, making it truly iconic. Despite its compact design, this home features an open-plan living area with a functional island kitchen that overlooks a gorgeous courtyard. The bedrooms each have their own built-in robes and are located towards the rear of the house, away from the hustle and bustle of the street. Plus, with a carport that accommodates two vehicles, you’ll have all the space you need.

Let’s chat

Want to know more about our services or our floor plan pricing?
Schedule a free 10-minute call with us using the button below or fill out a form. We’re here to answer any questions you have!

0
View