Skip to content
The Reveal
The Reveal

all about this floorplan

The Reveal

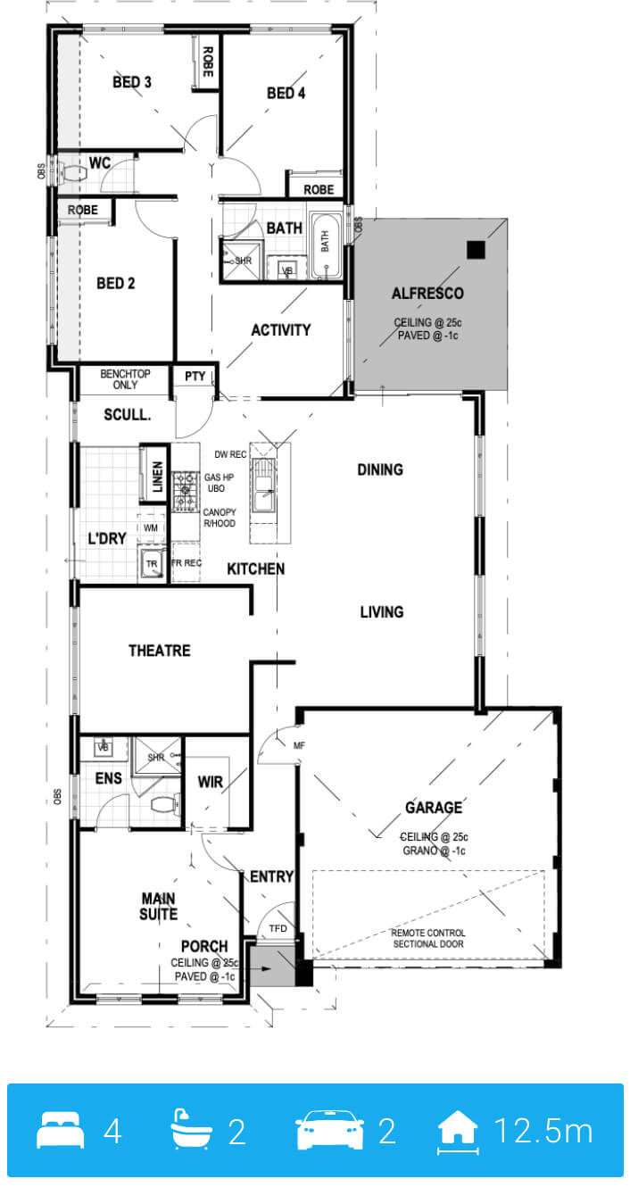
Get ready for the grand entrance! With a stunning 12.5m frontage, The Reveal is here to make a statement. Step right into the spacious master suite at the front, complete with a luxe ensuite and walk-in robe, setting the vibe for relaxation.

Then, it’s time for movie night in your dedicated theatre room – because who doesn’t love a private cinema experience? The heart of the home? A massive open-plan living and dining space, complete with a scullery for all your culinary needs.

At the back, three generously sized spare bedrooms wait for family, friends, or maybe just a little peace and quiet. A second bathroom makes sure everyone’s got their own space. Oh, and don’t forget the activity room, tucked next to the spare bathroom, ready for anything from playtime to hobbies. The Reveal doesn’t just show up – it leaves an impression.

Let’s chat

Want to know more about our services or our floor plan pricing?
Schedule a free 10-minute call with us using the button below. We’re here to answer any questions you have!

0
View